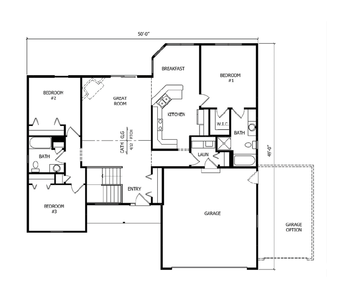
About the Whistler Ridge Home
What a beauty! While the Whistler Ridge is on the smaller scale square footage wise, it is the perfect plan for those searching for their starter home, those looking to downsize, and/or those who just want to enjoy a more minimalist lifestyle.


Amwood Homes, Inc
