About the Desert Mountain Home
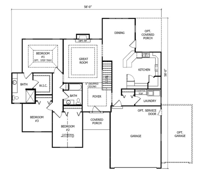
Farmhouse or Mid-Century Modern, the Desert Mountain is simply gorgeous! If you are a fan of natural light, you will fall in love with this home plan the moment you step into its airy, over-sized entry way.

Farmhouse or Mid-Century Modern, the Desert Mountain is simply gorgeous! If you are a fan of natural light, you will fall in love with this home plan the moment you step into its airy, over-sized entry way.
Amwood Custom Homes has approved panelized home builders throughout the Midwest! Use our builder locator to find a builder near you today!
Whether you are looking for a modern or traditional design, contemporary or rustic feel, a home can be designed to fit your needs and budget with endless options to customize. With computer-assisted design (CAD) programs, designers can turn just about any idea into a working blueprint!
View Our Inspiration Gallery