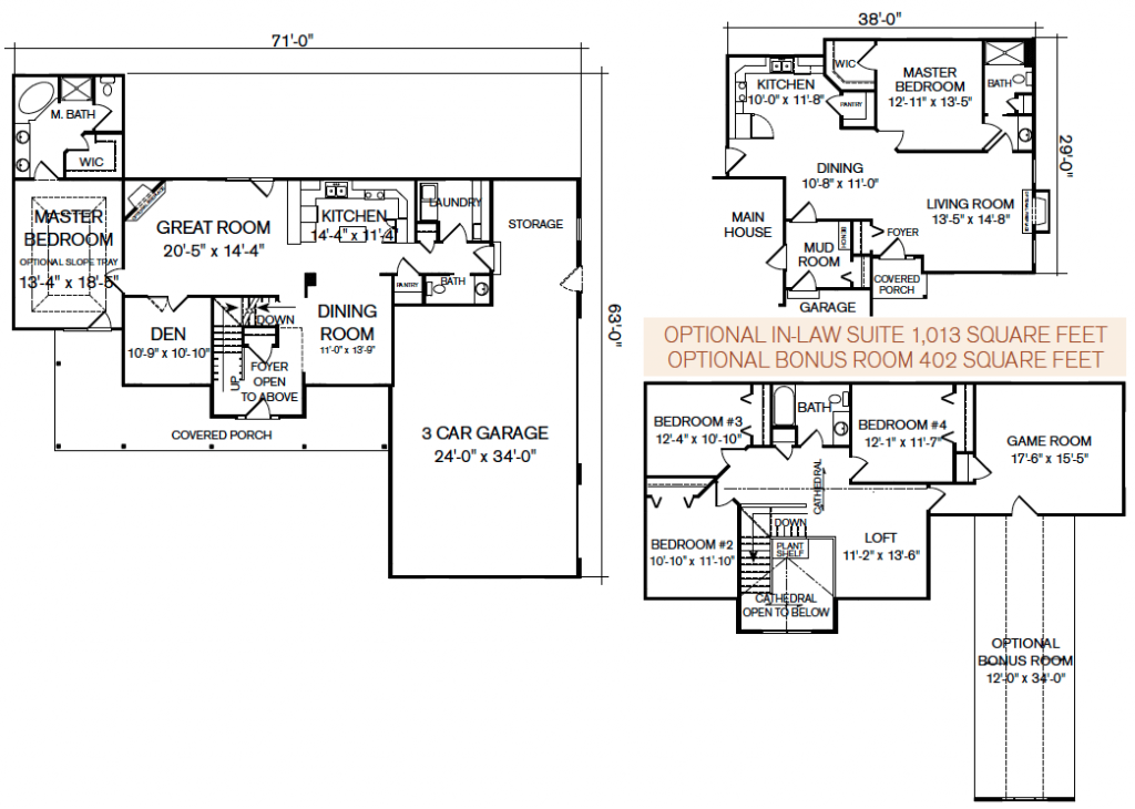
Country View

415
4 Bedroom
2 1/2 Bath
2,748 Sq. Ft.
Country View
Country View

Find A Builder

Amwood Custom Homes has approved panelized home builders throughout the Midwest! Use our builder locator to find a builder near you today!

Amwood Homes Amwood Homes, Inc

http://www.amwoodhomes.com/our-floorplans/country-view/

Customizing Your Home

Whether you are looking for a modern or traditional design, contemporary or rustic feel, a home can be designed to fit your needs and budget with endless options to customize. With computer-assisted design (CAD) programs, designers can turn just about any idea into a working blueprint!

View Our Inspiration Gallery

"We want D-H Builders and Amwood Homes to know how much we appreciate the new home they built for us."

Dennis & Linda

Read Full Testimonial